Работаем прямо сейчас!
Очистить фильтр
Расширить поискСузить поиск

ФИЛЬТР ПО КОМПЛЕКСАМ
Хочу купить
Отзывы клиентов
17-03-2025Александр и Елена отзыв о сотрудничестве с компанией «Болгарский Дом»
14-02-2025Отзыв от Алекса и Адель из Израиля о сотрудничестве с Болгарский Дом
14-02-2025Отзыв от Михаила и Елизаветы о сотрудничестве с Болгарский дом
03-12-2024Анна (Украина)

Хочу выразить огромную благодарность компании BolgarskiyDom за помощь приобретения недвижимости на СолнечномЧитать весь отзыв

Все отзывы
Заказать подбор жилья
ФИЛЬТР ПО КОМПЛЕКСАМ

Сбросить

Scarabey Madika — Скарабей Мадика

Доступно объектов - 1

Бургас, Болгария

Подробное описание:

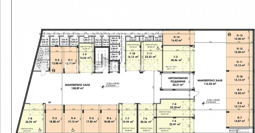
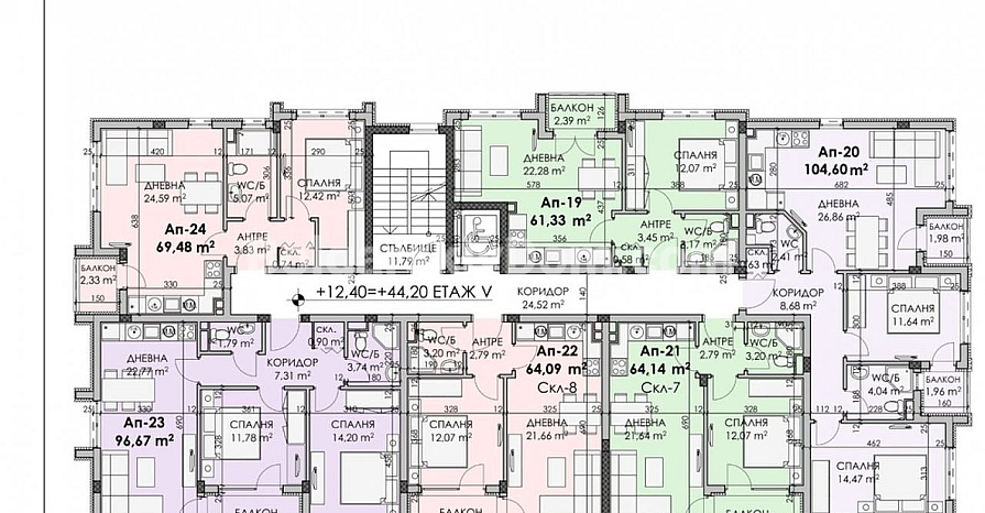
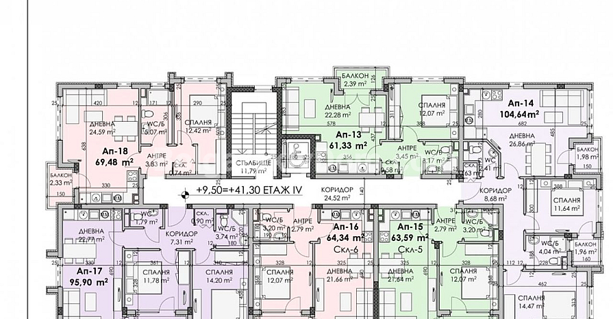
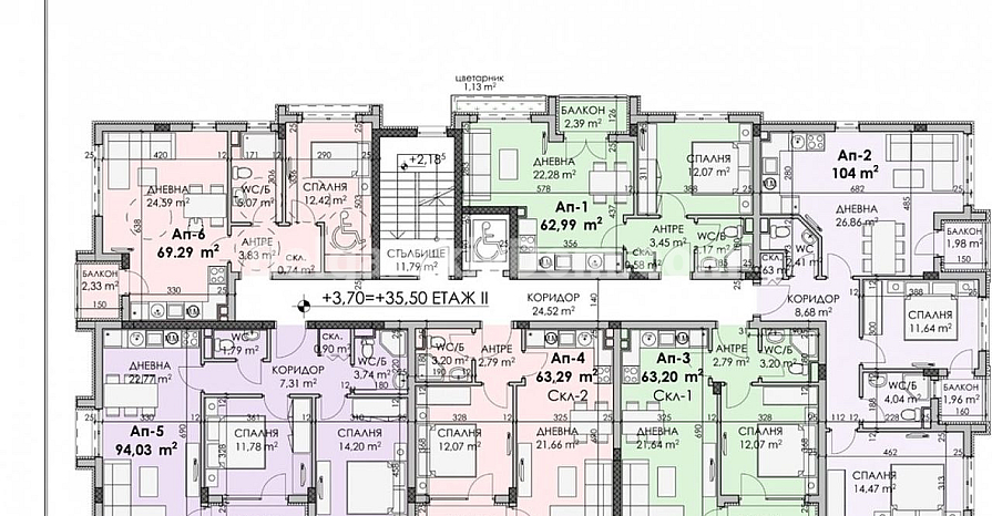
Scarabey Madika находится в благоустроенном квартале с новой асфальтированной дорогой и тротуарами. Район ценится за тишину, простор и соседство с авторитетной больницей «Сердце и Мозг». В шаговой доступности работают супермаркеты Lidl и Metro, а также торговый центр Galleria.

Комфорт проживания:

  • Готовность. Квартиры передаются с полной отделкой под ключ.
  • Парковка. Предусмотрены гаражи и наземные места для всех жильцов.
  • Сроки. Реализация проекта займет 30 месяцев со старта в феврале 2026 года.

Это идеальный выбор для тех, кто ищет спокойную жизнь в развитом районе без необходимости заниматься ремонтом.

Параметры:

Построенно:
2028 г.
Этажность:
7
До моря:
4000 м
Застройщик:
Неизвестно
Площадь:
63 м2
Стоимость:
от 139053 €

Объекты комплекса Scarabey Madika

12
Рассрочка
ID 15158 Квартиры от застройщика в Скарабей Мадика
Бургас
139 053 €
Комнат: на выбор
До моря: 4000 м.
Этаж: на выбор
Площадь: 96 кв. м.
Недвижимость от застройщика с хорошей ценой входа! Команда Болгарского Дома представляет современный семиэтажный проект, в котором городской комфорт гармонирует с тишиной новых кварталов. Лока... Подробнее
Зарегистрироваться
Спасибо.
Теперь вам доступны для просмотра скрытые объекты.
Ошибка отправки.
Перезагрузите страницу и попробуйте снова
Получите полную информацию
Фотографии и расположение
Спасибо.
Теперь вам доступны для просмотра эксклюзивные объекты.
Ошибка отправки.
Перезагрузите страницу и попробуйте снова
НАВЕРХ