Работаем прямо сейчас!
Очистить фильтр
Расширить поискСузить поиск

ФИЛЬТР ПО КОМПЛЕКСАМ
Хочу купить
Отзывы клиентов
17-03-2025Александр и Елена отзыв о сотрудничестве с компанией «Болгарский Дом»
14-02-2025Отзыв от Алекса и Адель из Израиля о сотрудничестве с Болгарский Дом
14-02-2025Отзыв от Михаила и Елизаветы о сотрудничестве с Болгарский дом
03-12-2024Анна (Украина)

Хочу выразить огромную благодарность компании BolgarskiyDom за помощь приобретения недвижимости на СолнечномЧитать весь отзыв

Все отзывы
Заказать подбор жилья
ФИЛЬТР ПО КОМПЛЕКСАМ

Сбросить

Вы можете заказать видео этого объекта

Вам нужно всего лишь заполнить форму заказа (Имя, E-mail, Телефон)

Форма заказа

Или связаться с нами по телефонам:

+7 495 544 50 28, +38 044 355 50 55, +359 8 9797 99 03 viber viber

ID 7438 Новый двухэтажный дом в Святом Власе

Город:
Святой Влас
Цена за м2: 1 300 €
Площадь: 150 кв. м.
Этаж: 2
Комнат: 4
Санузлов: 1
До моря: 700 м
Круглогодичность: Да
Вид на море: Есть
Басcейн: Есть
Мебель: Нет
Поддержка: 500 €
Статус: Продан
Заказать видео
* Поля обязательные для заполнения Свернуть форму
Александр
Руководитель отдела продаж
info@bolgarskiydom.com
Александр

Руководитель отдела продаж

Обращайтесь ко мне

Спасибо за заданный вопрос.
Я свяжусь с вами в ближайшее время.

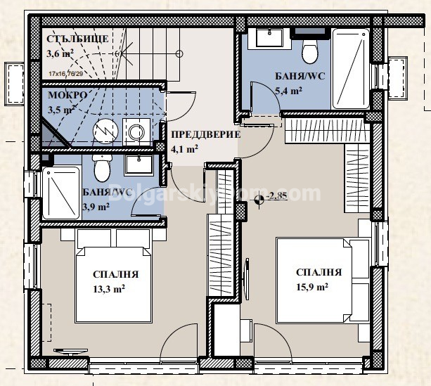
Описание объекта:

Предлагаем вам новый двухэтажный дом с тремя спальнями, расположенный в закрытом комплексе в Святом Власе. Планировка предусматривает три спальни, гостиную с кухонной зоной, балкон и вспомогательное помещение. Из окон открывается панорама леса и моря. Продажа осуществляется под ключ, без техники и мебели. Общая площадь недвижимости – 150 кв. м.

На территории нового комплекса расположена парковочная зона, бассейн, теннисный корт. Работает охрана, со двора открывается вид и на горы, и на море. Территория граничит с подножьем Старой Планины, морем и густым лесом – комплекс находится в местности Каскада.

Заказать актуальный прайс
* Поля обязательные для заполнения
Александр
Руководитель отдела продаж
info@bolgarskiydom.com
Болгария - это ЗДОРОВО!

Узнайте, почему стоит переехать жить в Болгарию: интересные места отдыха и развлечения для каждого члена семьи.

Подробнее

Похожие предложения

18
ID 15418 Трехкомнатная квартира в Дольче Вита 1
Святой Влас
195 000 €
Комнат: 3
До моря: 50 м.
Этаж: 2
Площадь: 130 кв. м.
Вид на море
Вау-новинка уже в нашем каталоге! Просторная и очень светлая трехкомнатная квартира с панорамным видом на море в комплексе Дольче Вита 1 в Святом Власе. Площадь 130 кв.м. на 2 этаже из 6. Квар... Подробнее
25
ID 11414 Двухкомнатная квартира в Вилла Флоренция
Святой Влас
196 000 €
Комнат: 2
До моря: 300 м.
Этаж: 2
Площадь: 74 кв. м.
Вид на море
Люкс-сегмент вторичной недвижимости с видом на море в Святом Власе от агентства Болгарский Дом! Современная двухкомнатная квартира в роскошном комплексе Вилла Флоренция, на втором этаже. На об... Подробнее
14
Рассрочка
ID 15350 Трехкомнатная квартира в Сан Вейв
Святой Влас
198 000 €
Комнат: 3
До моря: 100 м.
Этаж: 4
Площадь: 117 кв. м.
Вид на море
Специальное предложение! Трехкомнатная квартира с видом на море в комплексе Сан Вейв в Святом Власе. Площадь 117 кв.м. на 4/5 этаже. Квартира уютная и полностью жилая: просторная гостиная, отд... Подробнее
32
ID 15643 Трехкомнатная квартира в Панорама Форт Бич
Святой Влас
199 000 €
Комнат: 3
До моря: 50 м.
Этаж: 6
Площадь: 120 кв. м.
Вид на море
Новое пополнение каталога на первой линии - редкий формат для Святого Власа, где вид действительно захватывает с первой секунды! В Панорама Форт Бич продается просторная трехкомнатная квартира... Подробнее
17
ID 14579 Трехкомнатная квартира в Дольче Вита 2
Святой Влас
200 000 €
Комнат: 3
До моря: 50 м.
Этаж: 4
Площадь: 116 кв. м.
Вид на море
Встречайте роскошный трехкомнатный апартамент на первой линии в Святом Власе! Компания Болгарский Дом представляет просторную квартиру в комплексе Дольче Вита 2 с чистой площадью 116 кв.м., ра... Подробнее
18
ID 15317 Трехкомнатная квартира в Бадемите
Святой Влас
205 000 €
Комнат: 3
До моря: 50 м.
Этаж: 2
Площадь: 82 кв. м.
Вид на море
Эксклюзив от Болгарского Дома! Трехкомнатная квартира на первой линии моря в комплексе Бадемите в Святом Власе. Площадь 82 кв.м., самое выгодное расположение на 2-м этаже пятиэтажного здания с... Подробнее
4
Рассрочка
ID 6123 Апартаменты в Святом Власе, Флоренция Сьюитс
Святой Влас
от 207 522 €
Комнат: 3
До моря: 300 м.
Этаж: на выбор
Площадь: 77 кв. м.
Вид на море
Отличное инвестиционное предложение от застройщика! Продаются полностью готовые к проживанию апартаменты в новом комплексе – Флоренция Сьюитс. Управляющая компания позиционирует новый жилой ко... Подробнее
11
ID 14980 Трехкомнатная квартира в Этера 4
Святой Влас
210 000 €
Комнат: 3
До моря: 300 м.
Этаж: 4
Площадь: 102 кв. м.
Настоящий эксклюзив в коллекции Болгарский Дом: абсолютно новый трехкомнатный апартамент в только что сданном комплексе Этера 4! Это предложение закрывает сразу две главные потребности совреме... Подробнее
18
ID 14925 Трехкомнатная квартира в Манастира
Святой Влас
210 000 €
Комнат: 3
До моря: 50 м.
Этаж: 3
Площадь: 90 кв. м.
Вид на море
Представляем трехкомнатный апартамент, который станет вашей лучшей инвестицией! Лот площадью 95 кв.м. расположен в престижном комплексе Манастира на первой линии моря в Святом Власе. Главный а... Подробнее
Зарегистрироваться
Спасибо.
Теперь вам доступны для просмотра скрытые объекты.
Ошибка отправки.
Перезагрузите страницу и попробуйте снова
Получите полную информацию
Фотографии и расположение
Спасибо.
Теперь вам доступны для просмотра эксклюзивные объекты.
Ошибка отправки.
Перезагрузите страницу и попробуйте снова
НАВЕРХ